Dersom grensemerker i en tidligere fastlagt eiendomsgrense har blitt borte, kan grunneier be om at grensen merkes på nytt ved å bestille en klarlegging av eksisterende grense
Ved en klarlegging av eksisterende grense vil eiendomsgrensen bli målt opp og merket. Det vil bli foretatt en kvalitetshevning i matrikkelen, men grensene vil ikke bli forandret.
Slik søker du om klarlegging av eksisterende grense:
- Legg ved et kart som viser tydelig avmerking av hvilke grensepunkt som ønskes målt og merket. Bruk Bærumskart
Når komplett rekvisisjon er mottatt vil berørte parter bli innkalt til oppmålingsforretning. Varsel om oppmålingsforretning sendes ut minst 14 dager på forhånd. Lovbestemt saksbehandlingsfrist i henhold til matrikkelforskriftens § 18 er 16 uker.
Søknad sendes til post@baerum.kommune.no, merk søknad med; "Klarlegging av eksisterende grense"
Gebyr for klarlegging av eksisterende grense kommer frem av Bærum kommunes gebyrregulativ.
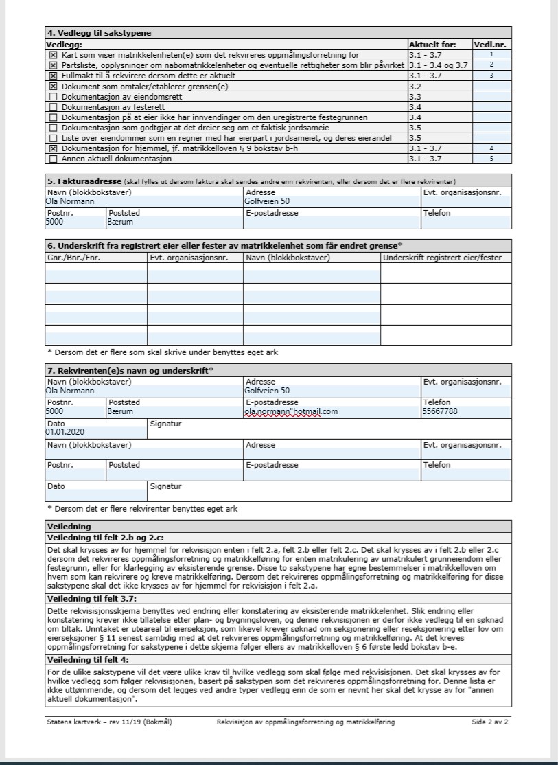
Se eksempel nedenfor på utfylling av side 1 og 2 av skjemaet «Rekvisisjon av oppmålingsforretning og matrikkelføring». Se også veiledningen nederst på skjemaets side 2.
Side 1

Side 2

Husk å lese veiledningen.